PRODUCTS
CONTACT US
庭院燈-太陽能路燈廠家-中山天航照明有限公司
聯系人:吳先生
服務熱線:18826019273
郵箱:944616384@qq.com
傳真:0760-22387193
地址:中山市小欖鎮海威路102號
網址:http://www.tcchemistry.com.cn
標準籃球場燈光配置方法及球場照明燈桿參數規范
發布時間:2021-12-24 14:16 人氣: 來源:未知
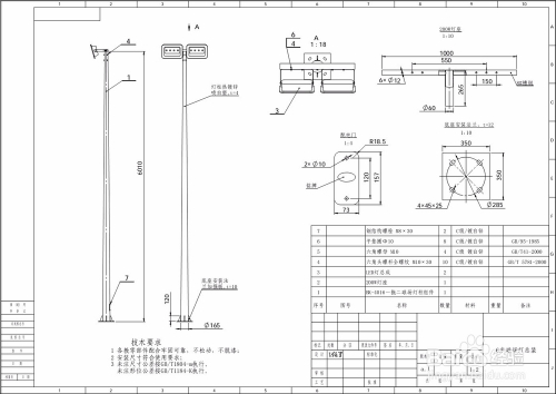
室外籃球場有兩種照明配置方式:經濟型四桿籃球場照明配置和標準六桿籃球場照明配置。燈具可選自傳統鹵素燈和高照度的發光二極管節能燈。不同的燈具配置類型也決定了燈桿的安裝數量。一般來說,金屬鹵化物燈具有較高的照度和較寬的照射范圍,可以選擇4個燈桿進行配置。然而,發光二極管燈具有低照度和相對柔和的光。適合選擇6個燈桿進行配置。每個燈桿可以配備2個相應的燈。工具/原材料7米錐形燈桿:上直徑60-70毫米,下直徑142-165毫米,壁厚3.0毫米,燈桿采用整體熱鍍鋅工藝,可有效延長燈桿使用壽命20-30年。金屬鹵化物燈:金屬鹵化物燈使用250瓦-400瓦的功率,正常使用壽命為13432-175918(小時)。LED投光燈:通常選用集成100瓦-250瓦泛光燈型發光二極管燈,使用壽命在18576-230027(小時)之間。燈桿預埋件是燈桿預埋安裝的必要附件之一。燈桿預埋安裝具有安全、牢固、抗風性能好、維修方便的優點。燈支架可以根據安裝的燈的數量來確定,并且通常通過內部或外部連接來設計。



1.首先根據前述的籃球場燈桿布線圖確定好需要裝燈桿的位置,挖坑放置燈桿預埋件和穿線PVC管,混凝土回填,凝固3-5天;

2.拆開燈桿包裝,將電線穿進燈桿并連接燈頭支架

3.將燈具安裝在燈頭支架上,連接電線,調節投光角度

4.接通電源進行調試,確定燈具正常發光,各項性能穩定

5.立燈桿,可用吊機或人工將燈桿吊起到預埋件安裝位置固定

6.將燈桿法蘭盤套進預埋件螺釘所在位置,調節好燈桿水平和角度,通過墊片和螺母進行鎖定、7將地線同燈桿線進行連接,球場整體燈光調試,安裝完畢END

注意事項:
1、預埋件安裝時,螺釘要露出地表5-8公分,太低燈桿底盤不容易鎖定,太高則增加安裝難度;
2、燈桿立起前一定要進行燈光調試,發現燈光不亮及時檢修電路或更換燈具。



服務熱線:18826019273 18826019273 吳先生
地址:中山市小欖鎮海威路102號
客服